Our Steel Building Design Software Products

Truss Design & Estimating

Discover the Leading Truss Design and
Estimating Software on the Market

Truss Design & Estimating (D & E) is a complete automated solution for the design of aluminum or cold formed steel truss building frames with either sloped or arched roof trusses. Our software can design trusses for: light-gage (cold formed) steel, structural steel, stainless steel, and aluminum.

This easy to use program will save you time and money in the analysis, design and estimating of light-gauge (cold formed) metal trusses. Typically, a (cold formed) metal truss would take 3 1/2 to 4 hours to design using conventional structural engineering software. Using Truss D&E, a truss can be designed in about 5 minutes!

Capabilities

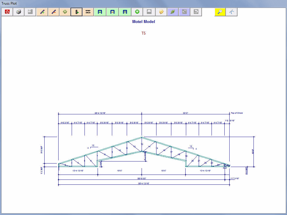
Click on images to enlarge.

  • Standard Trusses & Odd Shaped Trusses
  • Light-gage (cold formed) Steel, Structural Steel, Stainless Steel, Aluminum
  • Metric and Imperial Units
  • Multiple Member Libraries
  • Create your own unique library
  • US Codes & International Codes
  • Cost Estimate & Bill of Materials
  • Graphical Interaction
  • Truss to Truss Connection
  • Truss to Support Connection
  • Multiple Supports
  • Multiple Connector Option
  • In-Plane Analysis
  • Piggy Back Trusses
  • Select for Chamber in floor Truss
  • Out-of-Plane Analysis
  • Offset Web Analysis
  • Braced Webs Unlimited Spans
  • Hip-Roof Generation
  • 'Attic' Type Truss Design
  • Multiple Drawing Details - D1, D2, Fabrication & Erection Drawings, Erection
  • Allowable Stress Design (ASD)
  • Load Resistance Factor Design (LRFD)
  • Batch Analyses Interaction with ARGOS Vertex BD modeling
  • Lateral Bracing Design
  • Moving loads
  • DXF In/Out
  • Splice trusses
  • Multiple Web Layouts
  • Auto Wind Load
  • Several languages available

Special Features

Hip-Roof Generator function automatically generates all of the hip roof trusses. It loads each truss by the roof area pertaining to each truss and places point loads (gravity and wind uplift) on the hip rafter and the hip girder trusses. After you specify the hip girder setback distance, the routine will design the complete hip roof system in minutes, identifying trusses that failed and failure reason.

Connection Review provides a warning message if the number of fasteners exceeds the area allocated by the joint for fasteners.

User Friendly Graphical Interface allows you to: add, delete, or move webs, add or delete supports, use different support types, add or delete points, and add your own notes to the truss plots and layout sheets.

Modeling Program draws the layout of the roof system and allows for adding support walls, modifying ceilings, framed openings, and viewing the truss profiles. Click here to learn more about our modeling program .

Truss Gallery

You will be able to design both standard and custom, nonproprietary trusses. View the Truss Gallery below to see the truss shapes supported by Truss D & E. Click on the images to see a larger view.

gallery

Nonproprietary Truss Shapes Save You Money

Truss designers know that using proprietary truss designs can greatly increase truss material costs. Truss D & E allows you to design your own nonproprietary truss shapes, saving you money over expensive proprietary truss shapes.

Truss D & E in the News

The key to selecting a metal truss software program is to make sure the software provides all the capabilities needed to completely design and cost the truss project. Click here to review an article on Metal Truss Software that was published in the Metal Construction News.

Full Suite of Reports

When analysis is complete and your ready to build, Truss D & E will print a full suite of reports that include required members, connections, forces, reactions, stiffener requirements, truss plot and design data. A condensed report can also be produced that displays all the truss member lengths, connections, bracing, plates and other miscellaneous items required for the fabrication of the aluminum or steel truss. The reprint option can print any or all reports for any or all trusses in the project folder.

Integrated with STAAD.Pro

Truss D&E integrates with a structural engineering software package STAAD.Pro.

Integrated with IES VA Batch

Truss D&E is a fully integrated software package that runs on a standard PC. The software uses a structural engineering software package called VA Batch (a recognized leader in structural design software). The VA Batch software is included in the initial purchase price of Truss D&E. Click here to visit the IES Website.

Argos Interface

For users of Argos Building Design System software, an interface has been written between Vertex BD and Truss D&E. Once you have completed the building model in Vertex BD, you can click on truss layout, and Vertex BD will create the truss outer envelope and import all the truss layouts into Truss D&E. After Truss D&E analysis completes, the design information is transferred back to Vertex BD.

System Requirements

  • Windows XP, Vista, 7, 8 or 10
  • CPU: Pentium III or better
  • Hard Drive: 20 GB
  • Memory: 2 GB RAM
  • Display: SVGA, 15"

Truss D & E Will Make Your Truss Design Headaches Disappear

Join Us on Social Media

Available Languages

Our software is available in the following languages:

  • English
  • French
  • Indonesian
  • Portuguese
  • Spanish